+7 495 740-29-89
пн-пт: 10:00—19:00
сб: 11:00—14:00
Туроператор
АС-тревел
Club Med на Вернадского

Типы номеров
в Club Med Valmorel

Вернуться к описанию курорта

Club Med Valmorel высоте 1460 м, в центре прекрасного горного заповедника и у подножия живописного горнолыжного склона. Построенный из благородных материалов — дерева, камня и сланцевой плитки, — он предлагает посетителям современные уютные номера в стиле шале. Гости могут выбрать среди 275 номеров курорта три основные категории: Супериор, Делюкс и Сьют.

Внимание

Предлагаемые ниже планировки номеров носят информационный характер. Планировка может меняться в зависимости от наличия номеров такого же типа.

Номера Супериор

Номер категории Superior

C2

План номера Супериор в Club Med Valmorel

Номер Супериор в Club Med Valmorel

Номер Супериор в Club Med Valmorel

Уютные и практичные номера, оформленные с явным присутствием элегантности. В этих номерах есть гардеробная и ящики под кроватями. Материалы и цвета были тщательно подобраны для создания комфортной атмосферы.

В номере: телефон, телевизор, интернет, сейф, все для чая/кофе, утюг и гладильная доска, ванна, фен.

Площадь номера: 24—28 м2
Количество гостей: 1—3 чел.

Номер Superior
с балконом

C2+

План номера Супериор в Club Med Valmorel

Номер Супериор в Club Med Valmorel

Номер Супериор в Club Med Valmorel

Выйдите из своей комнаты на балкон и насладитесь свежим воздухом. Оттенки красного и серого, а также изящные линии мебели создают элегантное жилое пространство.

В номере: телефон, телевизор, интернет, сейф, все для чая/кофе, утюг и гладильная доска, ванна, фен.

Площадь номера: 24—29 м2
Количество гостей: 1—3 чел.

Объединенные номера 2 × Superior

C2+C2

План номера Супериор в Club Med Valmorel

Номер Супериор в Club Med Valmorel

Просторный и практичный номер идеально подойдет для гостей с детьми.

В номере: телефон, телевизор, интернет, сейф, все для чая/кофе, утюг и гладильная доска, ванна, фен.

Площадь номера: 48—57 м2
Количество гостей: до 6 чел.

Объединенные номера Superior и Superior с балконом

 

План номера Супериор в Club Med Valmorel

Этот вариант совмещает просторное размещение для всей семьи с чудесным видом с балкона.

В номере: телефон, телевизор, интернет, сейф, все для чая/кофе, утюг и гладильная доска, ванна, фен.

Площадь номера: 48—53 м2
Количество гостей: до 6 чел.

Объединенные номера 2 × Superior
с балконом

C2+C2+

План номера Супериор в Club Med Valmorel

Номер Супериор в Club Med Valmorel

Этот вариант совмещает просторное размещение для всей семьи с чудесным видом из окна.

В номере: телефон, телевизор, интернет, сейф, все для чая/кофе, утюг и гладильная доска, ванна, фен.

Площадь номера: 48 м2
Количество гостей: до 6 чел.

Номер Superior
для маломобильных гостей

H2

План номера Супериор в Club Med Valmorel

Номер Супериор в Club Med Valmorel

Номер Супериор в Club Med Valmorel

В номере созданы все условия для размещения гостей с ограниченной подвижностью.

В номере: телефон, телевизор, интернет, сейф, все для чая/кофе, утюг и гладильная доска, душ, фен.

Площадь номера: 24 м2
Количество гостей: 1—2 чел.

Номер Superior
с балконом, для маломобильных гостей

H2+

План номера Супериор в Club Med Valmorel

Номер Супериор в Club Med Valmorel

В номере созданы все условия для размещения гостей с ограниченной подвижностью. Балкон дает вам возможность подышать чистым бодрящим горным воздухом.

В номере: телефон, телевизор, интернет, сейф, все для чая/кофе, утюг и гладильная доска, душ, фен.

Площадь номера: 24 м2
Количество гостей: 1—2 чел.

Номера Делюкс

Номер категории Deluxe

A2

План номера Делюкс в Club Med Valmorel

Номер Делюкс в Club Med Valmorel

Номер Делюкс в Club Med Valmorel

Номер Делюкс в Club Med Valmorel

Интерьер номера — элегантный и утонченный — с элементами горного стиля, что создает уютную атмосферу. Есть лаунж-зона для отдыха и кровать, расположенная в центре комнаты.

В номере: телефон, телевизор, интернет, софа, сейф, мини-бар (без наполнения), все для чая/кофе, утюг и гладильная доска, ванна, фен, халаты и тапочки.

Площадь номера: 29 м2
Количество гостей: 1—2 чел.

Объединенные номера Deluxe + Superior

A2+C2

План номера Делюкс в Club Med Valmorel

Номер Делюкс + Супериор в Club Med Valmorel

Практичный и просторный номер идеален для семей с маленькими детьми.

В номере: телефон, телевизор, интернет, софа, сейф, мини-бар (без наполнения), все для чая/кофе, утюг и гладильная доска, ванна, фен, халаты и тапочки.

Площадь номера: 53—57 м2
Количество гостей: до 5 чел.

Объединенные номера Deluxe + Superior
с балконом

A2+C2+

План номера Делюкс в Club Med Valmorel

Практичный и просторный номер идеален для семей с маленькими детьми.

В номере: телефон, телевизор, интернет, софа, сейф, мини-бар (без наполнения), все для чая/кофе, утюг и гладильная доска, ванна, фен, халаты и тапочки.

Площадь номера: 53—57 м2
Количество гостей: до 5 чел.

Объединенные номера 2 × Deluxe

A2+A2

План номера Делюкс в Club Med Valmorel

Уютный и просторный номер с изящными элементами в оформлении, 2 ванных комнаты, 2 балкона.

В номере: телефон, телевизор, интернет, софа, сейф, мини-бар (без наполнения), все для чая/кофе, утюг и гладильная доска, ванна, фен, халаты и тапочки.

Площадь номера: 58 м2
Количество гостей: до 4 чел.

Номера Сьют в квартале Le Lodge «5 трезубцев»

Le Lodge, квартал «5 трезубцев»

Кроме основной территории с уровнем комфорта «4 трезубца», на курорте существует зона особой комфортности, «квартал» Le Lodge. Его гостям доступны 26 дизайнерских сьютов с балконом и видом на горы, закрытый лаунж площадью 100 м2 и эксклюзивный бар с видом на Монблан.

Гости зоны «5 трезубцев» пользуются особыми привилегиями: отдельная лыжная комната; завтрак в номер; услуги дворецкого: привилегированный доступ к развлечениям и сервисам, входящим в стоимость пакета (приоритетное бронирование специалитета в ресторанах и т. п.), индивидуальное обслуживание для сервисов a la carte (SPA, эксклюзивный сервис номеров, услуги профессиональной няни, прачечная, индивидуальные экскурсии и т. п.), персональная консультация по вопросам экскурсий, развлечений на курорте и прогулках за его пределами; обслуживание в барах лаунж-зон по вечерам; подача шампанского в бокалах в лаунж-зонах в 18:00; ежедневное пополнение напитков в мини-баре.

Номер категории Suite

S2

План номера Сьют в Club Med Valmorel

Этот номер состоит из спальни, отдельной гостиной и балкона и предлагает комфортное пространство для пар.

В номере: телефон, телевизор, интернет, софа, сейф, мини-бар (пополняется ежедневно), все для чая/кофе, утюг и гладильная доска, шкафчик для лыж с сушилкой для обуви, ванна, душ, фен, халаты и тапочки.

Площадь номера: 52 м2
Количество гостей: до 2 чел.

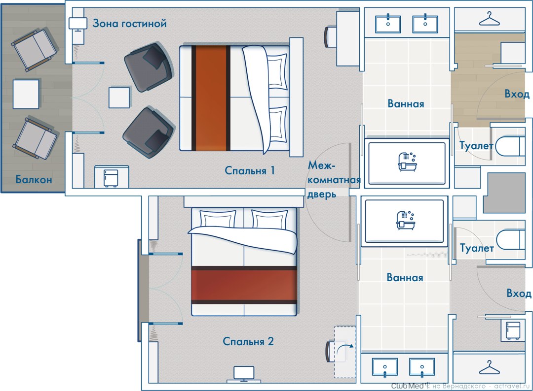
Семейный номер Family Suite

S4

План номера Сьют в Club Med Valmorel

Номер Сьют в Club Med Valmorel

Номер Сьют в Club Med Valmorel

Номер Сьют в Club Med Valmorel

Стильный и элегантный номер расположен в самом центре курорта. Спальни: основная и смежная, гостиная, балкон с прекрасным видом на долину.

В номере: телефон, телевизор, интернет, софа, сейф, мини-бар (пополняется ежедневно), все для чая/кофе, утюг и гладильная доска, шкафчик для лыж с сушилкой для обуви, ванна, душ, фен, халаты и тапочки.

Площадь номера: 50 м2
Количество гостей: до 4 чел.

Номер Suite
для людей с ограниченными возможностями

S2H

План номера Сьют в Club Med Valmorel

Номер Сьют в Club Med Valmorel

Номер Сьют в Club Med Valmorel

В номере на третьем этаже созданы все условия для размещения гостей с ограниченной подвижностью.

В номере: телефон, телевизор, интернет, софа, сейф, мини-бар (пополняется ежедневно), все для чая/кофе, утюг и гладильная доска, шкафчик для лыж с сушилкой для обуви, ванна, душ, фен, халаты и тапочки.

Площадь номера: 30 м2
Количество гостей: 1—2 чел.

Размещение в шале

Кроме собственно курорта Club Med Valmorel гостям доступно проживание в апартаментах в 2—3-этажных шале. В каждом шале от 3 до 7 (а в среднем 4) апартамента. Каждый со своим входом с улицы. При размещении в шале гостям предлагается эксклюзивное обслуживание.

Вернуться к описанию курорта
Иван Щенников Иван Щенников
◆ менеджер по туризму
 +7 926 384-99-44

Наталья Нере́тина Наталья Нере́тина
◆ директор отдела продаж
 +7 929 910-90-60